ChangJia este produsă folosind materiale de înaltă calitate.
Descriere produs
| Supapă reductoare de presiune cu acționare directă, tip ZDR 10 D...40B/ | ||
| Mărimea 10 | până la 21 MPa | până la 50 l/min |
Funcțional, secțiune
Supapa de reducere a presiunii tip ZDR 10 D.. este o supapă cu acționare directă Way, cu design cu placă sandwich și funcție de eliberare a presiunii pe partea secundară. Este utilizată pentru a reduce presiunea sistemului.
Supapa de reducere a presiunii este alcătuită în esență din carcasă (1), sertarul de comandă (2), un arc de compresie (3) și dispozitivul de reglare (4), precum și o supapă de sens unidirecțional opțională.
Presiunea secundară este setată de elementul de reglare a presiunii (4).
Modelul W
În rest, supapa este normal deschisă, iar fluidul poate curge nestingherit de la orificiul A la orificiul A1. Presiunea din orificiul A circulă simultan prin conducta de control (5) prezentă în zona bobinei opusă arcului de compresie (3).
Când presiunea din orificiul A1 depășește nivelul de presiune setat la arcul de compresie (3), bobina de control (2) se deplasează în poziția de control, reglați lingura de compresie (3) și menține constantă presiunea din orificiul A.
Presiunea de control și uleiul pilot sunt preluate din orificiul A1 prin intermediul mecanismului de control (5). Dacă presiunea din orificiul A1 crește și mai mult din cauza forțelor externe, bobina de control (2) este deplasată și mai mult spre arcul de compresie (3).
Aceasta determină deschiderea unui șurub de curgere la orificiul A1 prin intermediul zonei de control (6) de pe bobina de control (2) și carcasa (1) către rezervor (orificiul TB).
Suficient lichid curge apoi în rezervor pentru a preveni orice creștere ulterioară a presiunii.
Camera arcului (7) este întotdeauna golită către exteriorul rezervorului/prin orificiul TA.
O conexiune pentru manometru (8) permite monitorizarea presiunii secundare la supapă.
Montarea unei supape de sens unic pentru curgere liberă este posibilă doar în porturile A1 până la A în versiunea DA
Modelele W și PB,
În modelul DP, presiunea este redusă în orificiul P1. Presiunea de control și uleiul pilot sunt preluate intern din orificiul P1.
În modelul „DB-”, presiunea din orificiul P1 este redusă, iar pilotul este preluat din orificiul B.
Atenție!
Când supapa direcțională este în poziția de comutare P către A, presiunea din podul B nu trebuie să depășească presiunea secundară setată. În caz contrar, presiunea din orificiul A va fi ajustată.
Dacă se utilizează fără o supapă direcțională, TA și TB trebuie interconectate (de exemplu, în placa de acoperire).
curbe caracteristice (măsurate la V=41mm²/s și t=50℃)
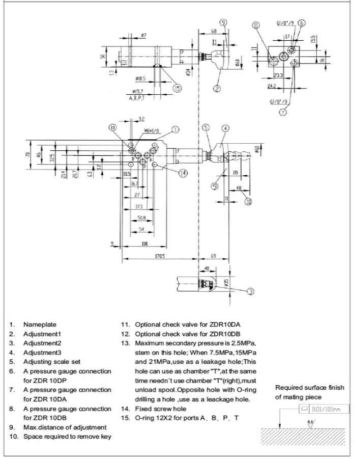
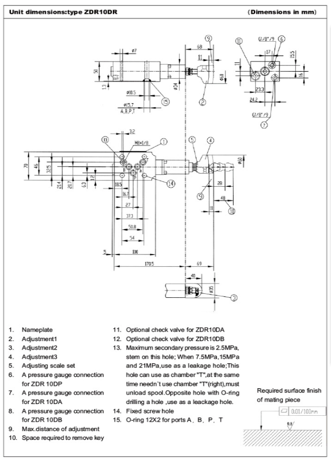
Dimensiuni unitate ZDR10DR (Dimensiuni în mm)
Performanța și calitatea produsului sunt stabile și fiabile.






















