Бұл өнім керемет мүмкіндіктерінің арқасында өнеркәсіпте кең нарықта қолданылады.
Өнім сипаттамасы
| Пилотпен басқарылатын қысымды төмендететін клапан, типті DR... 50B/ | ||
| Өлшемі 10-20 | 31,5 МПа дейін | 400 л/мин дейін |
Функционалдық, бөлім
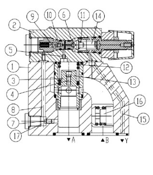
Қысым клапанының түрі DR - екінші реттік тізбектен басқарылатын пилоттық басқарылатын қысымды төмендететін клапандар. Олар негізінен негізгі катушка кірістіру (3) бар негізгі клапаннан (1) және қысымды реттейтін элементі бар пилоттық клапаннан (2) тұрады.
Тыныштықта клапандар ашық, сұйықтық негізгі катушка (3) арқылы В портынан А портына еркін өте алады.
А портындағы қысым негізгі катушканың төменгі жағына әсер етеді. Сонымен бірге негізгі поршеньдің (3) серіппелі жағындағы тесік ⑷ және порт (5) арқылы пилоттық клапандағы ⑵ шарға(6) қысым әсер етеді.
Ол шарға (6) саңылау (7), басқару сызығы (8), кері клапан (9 саңылау (10)) арқылы әсер етеді. Серіппенің (11) орнатуына сәйкес шардың (6) алдында қысым пайда болады,
портта (5) және серіппелі камерада (12), басқару поршенін (13) ашық күйде ұстаңыз А портындағы қысым серіппеде (11) орнатылған мәннен асып кеткенше және шарды (6) ашқанша сұйықтық негізгі катушка (3) арқылы В портынан А портына еркін ағып кетуі мүмкін.
Басқару поршені (13) мөлшерлеу күйіне ауысады.
Қажетті төмендетілген қысымға А портындағы қысым мен серіппеде (11) орнатылған қысым арасындағы тепе-теңдікке қол жеткізілгенде, серіппелі камерадан (14) резервуарға пилоттық майды ағызу басқару желісі (15) арқылы сырттан жүзеге асырылады.
Қосымша тексеру клапанын (16) орнату арқылы А портынан В портына еркін қайтарылатын ағынға қол жеткізуге болады.
Манометр қосылымы (17) А портындағы төмендетілген қысымды бақылауға мүмкіндік береді
сипаттамалық қисықтар (V=41мм2/с және t=50℃ өлшенген)
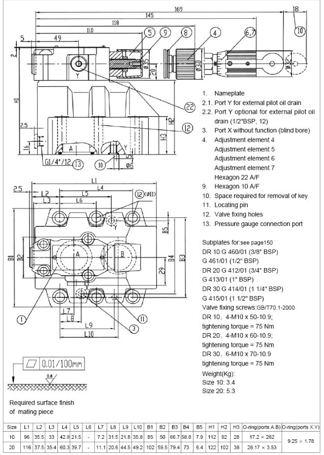
Бірлік өлшемдері: қосалқы плитаны орнатуға арналған клапан (Өлшемдері мм)
тәжірибелі басқару командасымен клиенттерге қызмет көрсетуге арналған.





















