presta muita atenção a toda a produção da ChangJia para buscar alta qualidade.
Descrição do produto
| Válvula redutora de pressão, operação direta, tipo DR6DP | ||
| Tamanho 10 | até 21 MPa | até 80L/min |
Funcional, seção
A válvula tipo DR 6 DP é uma válvula redutora de pressão de operação direta de 3 vias com função de alívio de pressão no lado secundário.
É utilizado para reduzir a pressão do sistema. A pressão secundária é definida pelo elemento de ajuste de pressão (4).
Em repouso, a válvula está normalmente aberta e o fluido de pressão pode fluir livremente da porta P para a porta A. A pressão na porta A está ao mesmo tempo, através da linha de controle (6), presente em toda a área do carretel oposta à mola de compressão (3).
Quando a pressão no pod A excede o nível de pressão definido na mola de compressão (3), o carretel de controle (2) se move para a posição de controle e mantém a pressão definida na porta A constante.
O óleo de controle e piloto são retirados da porta A através da linha de controle (6)
Se a pressão na porta A ainda aumentar devido a forças externas no atuador, o carretel de controle (2) se move ainda mais em direção à mola de compressão (3).
Isso faz com que um caminho de fluxo seja aberto na porta A, através do terminal de controle (8) no carretel de controle (2), até o tanque. Fluido sob pressão suficiente flui para o tanque para evitar qualquer aumento adicional de pressão.
A câmara de mola (7) é sempre drenada para o tanque externamente através da porta T (Y).
Para fluxo de retorno livre da porta A para a porta P, uma válvula de retenção opcional (5) pode ser instalada
Uma conexão de manômetro (1) permite que a pressão secundária na válvula seja monitorada
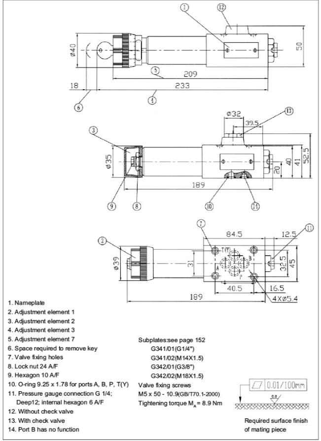
Dimensões da unidade: tipo DR6DP (Dimensões em mm)
O produto apresenta uma perspectiva de aplicação promissora devido à sua praticidade.



















